Property Type
House, House
Parking
Garage: Yes, 0 parking
MLS #
202526184
Size
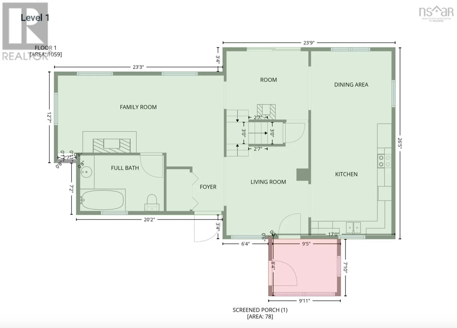
1764 sqft
Basement
Unfinished, Full (Unfinished)
Listed on
-
Lot size
-
Tax
-
Days on Market
-
Year Built
1930
Maintenance Fee
-
